Imagine 101

Casa de inchiriat pretabila pentru cabinete, clinicmedicale in Sebes, Alba

ID: P182966 Sebes, Central 60
4.000€
Descriere
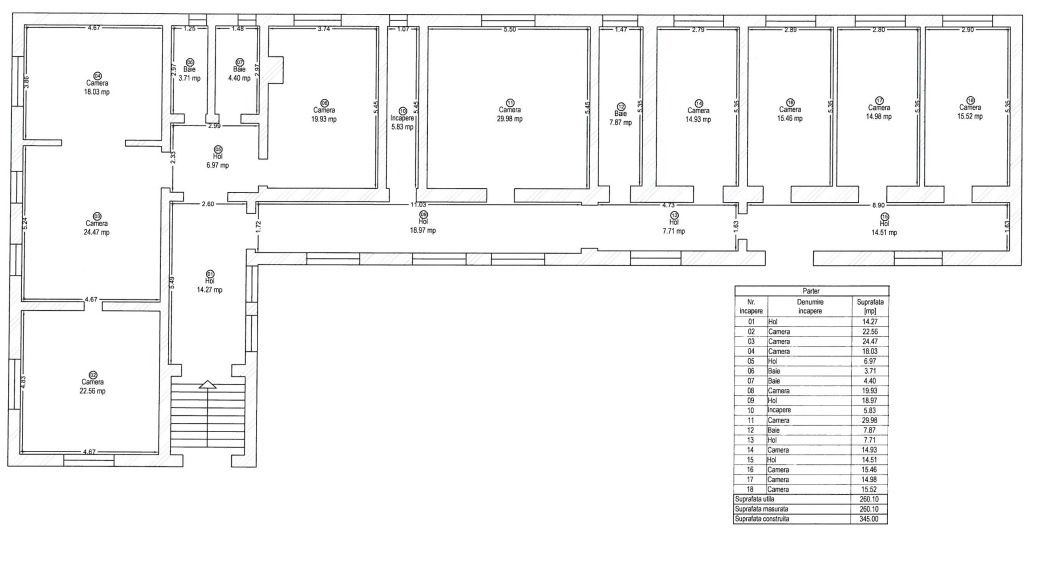
Agenția Imobiliare13.ro vă propune spre închiriere o clădire în Sebeș, str. Șurianu (zona Spitalului Municipal). Imobilul are o suprafață utilă de 260 mp, dispus pe un singur nivel și compartimentat în 9 camere, 3 băi cu acces individual din hol, ceea ce îl face ideal pentru birouri, cabinete medicale, clinici private, grădiniță, after-school sau alte activități comerciale și educaționale.
Clădirea este amplasată pe un teren de 2302 mp și beneficiază de curte proprie (aprox 20 locuri de parcare).
Clădirea este la stadiu de gri și necesită renovare. Referitor la acest aspect se va discuta cu fiecare client în parte și se va stabili cum se va desfășura amenajarea după nevoile dumneavoastră GRATUIT!
Condițiile sunt discutabile în funcție de necesitatea clientului.
Termen de predare rapid de la proprietar.

Spatiul este ideal pentru începerea afacerii tale, având acces generos de 32 m, direct din stradă și fiind amplasat într-o zonă intens circulată și de mare căutare pe piața imobiliară.




Caracteristici
  • ID:P182966
  • Nr. camere:9
  • S. utila:260.00 mp
  • S. utila totala:260.00 mp
  • S. construita:345.00 mp
  • S. teren:2302.00 mp
  • Nr. bai:3
  • Nr. parcari:20
  • Front stradal:32.00 m
  • Nr. fronturi:1
  • Structura rezistenta:Caramida
Specificatii
Curent
Apa
Canalizare
Gaz
CATV
Telefon
Acces internet
Fibra optica
Centrala imobil
Localizare
Vlad Chirca
Broker Imobiliar
Esti interesat de aceasta proprietate ?