Imagine 101

De inchiriat casa ultracentrala in Sebes, Jud, Alba

ID: P216625 Sebes, Central 30
1.200€
Descriere
Cu o amplasare privilegiată în zona centrală a Sebeșului , această casă de 135 de metri pătrați reprezintă o oportunitate unică pentru cei în căutare de un spațiu comercial versatil și modern.
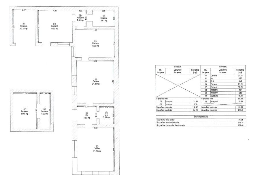
Cu trei camere spațioase, două băi amenajate, o bucătărie și o receptie, această casă este pregătită să găzduiască orice tip de afacere. Fie că este vorba despre un birou, un salon de înfrumusețare, un showroom sau chiar un mic restaurant sau cafenea, spațiul generos și versatil se adaptează cu ușurință nevoilor tale comerciale.

Însă punctul forte al acestei proprietăți îl reprezintă curtea sa privată, cu o suprafață generoasă de 130 de metri pătrați. Acest spațiu exterior oferă o oază de liniște în mijlocul agitației orașului și poate fi amenajat pentru terasă, grădină sau parcări pentru clienți sau angajați.

În plus, amplasamentul central asigură acces facil la toate mijloacele de transport în comun, facilitând astfel accesul atât pentru clienți, cât și pentru angajați. Cu stație de autobuz și taxi în proximitate, această locație se bucură de o conectivitate excelentă cu întregul oraș.

Nu ezita să descoperi toate posibilitățile pe care le oferă această casă minunată și să transformi visul tău comercial în realitate!
Caracteristici
  • ID:P216625
  • Nr. camere:4
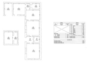
  • S. utila:89.00 mp
  • S. utila totala:116.00 mp
  • S. construita:135.00 mp
  • S. teren:265.00 mp
  • Nr. bucatarii:1
  • Nr. bai:2
  • Front stradal:13.33 m
  • Nr. fronturi:1
  • An renovare:2025
  • Structura rezistenta:Caramida
  • Avans:1200
  • Garantie:1200
Specificatii
Curent
Apa
Canalizare
Gaz
Telefon
Acces internet
Fibra optica
Centrala proprie
Calorifere
Vopsea lavabila
Faianta
Gresie
Ferestre Termopan
Usa intrare PVC
Usa interior Lemn
Pivnita
Bucatarie Nemobilata
Nemobilat
Curte
Localizare
Vlad Chirca
Broker Imobiliar
Esti interesat de aceasta proprietate ?